1、用途及適用范圍
XRL低壓配電箱適用于額定電壓AC220V或AC380V,負載總量不大于225A的單相三線或三相五線電路中,作為對用電設備進行配電、控制,對線路的過載、短路、過電壓和漏電起保護作用的一種成套裝置。可廣泛應用于高層建筑、住宅、車站、港口、機場、醫院、影劇院、大型商業網站和工礦企業等。產品符合GB72513、IEC493-3等標準。
2、型號及含義

3、結構特點

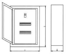
XRL低壓配電箱系戶內裝置,分戶內靠墻懸掛和嵌入墻內安裝兩種形式,箱體采用冷軋鋼板彎制,箱的正面有門,門有暗鉸鏈,門打開后在斷路器手柄操作上可設安全防護封門。取下封門,箱內設備完全敞露,可進行檢修。在箱體上下側有敲落孔,供導線引人和接出。
箱體為金屬結構,分明裝式(懸掛式)和暗裝式(嵌墻式)
| 結構代號 | 外形尺寸 | ||
| 寬(W) | 高(H) | 深(C) | |
| XRL3-001 | 300 | 400 | 160 |
| XRL3-002 | 400 | 500 | 160 |
| XRL3-003 | 400 | 600 | 160 |
| XRL3-004 | 500 | 600 | 160 |
| XRL3-005 | 500 | 700 | 160 |
| XRL3-006 | 600 | 800 | 160 |
| XRL3-007 | 700 | 800 | 160 |
| XRL3-011 | 300 | 400 | 180 |
| XRL3-012 | 400 | 500 | 180 |
| XRL3-013 | 400 | 600 | 180 |
| XRL3-014 | 500 | 600 | 180 |
| XRL3-015 | 500 | 700 | 180 |
| XRL3-016 | 600 | 800 | 180 |
| XRL3-017 | 700 | 900 | 180 |
| XRL3-021 | 300 | 400 | 200 |
| XRL3-022 | 400 | 500 | 200 |
| XRL3-023 | 400 | 600 | 200 |
| XRL3-024 | 500 | 600 | 200 |
| XRL3-025 | 500 | 700 | 200 |
| XRL3-026 | 600 | 800 | 200 |
| XRL3-027 | 700 | 900 | 200 |
注: XRL4箱體尺寸參照XRL3,面積尺寸為W+20,H+20
請認真填寫表單內容,咨詢回復的工作時間為:周一至周五,9:00至18:00,請耐心等待工作人員回復。